Honeywell Wiring Diagram 2 Port Valve : Honeywell Motorised Valve Wiring Diagram For Gif 1024 950 Beauteous S8610u In 1024x931 1024x931 On Honeywell S8610u Central Heating Heating Systems How To Plan - Rated 5 out of 5 by northern1968 from honeywell products these valves are second to none i believe, been out of the heating and hot water game for a little while but nice to return and see the.
Honeywell Wiring Diagram 2 Port Valve : Honeywell Motorised Valve Wiring Diagram For Gif 1024 950 Beauteous S8610u In 1024x931 1024x931 On Honeywell S8610u Central Heating Heating Systems How To Plan - Rated 5 out of 5 by northern1968 from honeywell products these valves are second to none i believe, been out of the heating and hot water game for a little while but nice to return and see the.. Wiring diagram for single phase models. (hii) reserves the right to make changes in specifications and other information contained in this document without prior notice, and the reader should in all cases consult hii to determine whether any such changes have been made. 3.2.1 configurations & definitions of quick plug terminals. 3.2 wirings between servo drive & servo motor. Installed 4 of these 30 years ago to upstairs, downstairs, granny flat and hot water zones.
I dont see any model number. Flow tube flanges, bleed manifolds and valves, drain valves, shaft seal assemblies, transmitter ports) for signs of leakage, damage, or failure. 12 11394 honeywell issue 14:11394 honeywell issue 14. In those times, all you needed was one wire from the furnace transformer. Tighten the two screws to secure the connector to the port.
Honeywell Wiring Diagram Wiring Diagram from lh3.googleusercontent.com By using this honeywell literature, you agree that honeywell will have no liability for any damages arising out of your use or modification to, the literature. For silent operation in properly designed and installed systems. Contains all the essential wiring diagrams across our range of heating controls. Honeywell hydronic valves are designed and tested. In those times, all you needed was one wire from the furnace transformer. Honeywell stats, esp the rounds ones, have multiple wiring diagrams that come with them including those for radiant which is a boiler hookup. I dont see any model number. (hii) reserves the right to make changes in specifications and other information contained in this document without prior notice, and the reader should in all cases consult hii to determine whether any such changes have been made.
Tighten the two screws to secure the connector to the port.
Here is 'typical' honeywell icon gas valve service manual for bradford white, that may or may not apply to your water heater. The old owner have installed 4 honeywell v8043e1012 zone valves to a hydro therm hc 165 gas boiler. (hii) reserves the right to make changes in specifications and other information contained in this document without prior notice, and the reader should in all cases consult hii to determine whether any such changes have been made. I dont see any model number. By using this honeywell literature, you agree that honeywell will have no liability for any damages arising out of your use or modification to, the literature. Contains all the essential wiring diagrams across our range of heating controls. 3.2.1 configurations & definitions of quick plug terminals. Click the icon or the document title to download the pdf. Honeywell v4043h 2 port motorised valve. Rated 5 out of 5 by northern1968 from honeywell products these valves are second to none i believe, been out of the heating and hot water game for a little while but nice to return and see the. For silent operation in properly designed and installed systems. Honeywell stats, esp the rounds ones, have multiple wiring diagrams that come with them including those for radiant which is a boiler hookup. Gives honeywell thermostat wiring diagram 4 wire guides and hints.
The old owner have installed 4 honeywell v8043e1012 zone valves to a hydro therm hc 165 gas boiler. I dont see any model number. 3.2.1 configurations & definitions of quick plug terminals. Gives honeywell thermostat wiring diagram 4 wire guides and hints. I have followed the wiring diagram and when i turn the thermosat on i can see the zone valve motor opening the valve but my boiler does not turn on.
Diagram Honeywell Central Heating Thermostat Wiring Diagram Full Version Hd Quality Wiring Diagram P1lanpinch Jftechnology It from tonetastic.info For silent operation in properly designed and installed systems. Plus, you had another to feed power to a gas valve or relay to turn the heat on. Wiring diagram for single phase models. Rated 5 out of 5 by northern1968 from honeywell products these valves are second to none i believe, been out of the heating and hot water game for a little while but nice to return and see the. Flow tube flanges, bleed manifolds and valves, drain valves, shaft seal assemblies, transmitter ports) for signs of leakage, damage, or failure. By using this honeywell literature, you agree that honeywell will have no liability for any damages arising out of your use or modification to, the literature. 1) visually inspect pressure retaining components (i.e.: Honeywell voyager 1450g, 1470g, 1472g (2d).
I have followed the wiring diagram and when i turn the thermosat on i can see the zone valve motor opening the valve but my boiler does not turn on.
Honeywell stats, esp the rounds ones, have multiple wiring diagrams that come with them including those for radiant which is a boiler hookup. 3.2 wirings between servo drive & servo motor. Honeywell voyager 1450g, 1470g, 1472g (2d). Scan the following plug and play code to program the scanner for a honeywell bioptic scanner auxiliary port configuration. Plus, you had another to feed power to a gas valve or relay to turn the heat on. Shows actual uses for most commonly seen wire colors in 4 wire units. 3.2.1 configurations & definitions of quick plug terminals. Once the scanner or cordless base has been fully connected, power up the computer. Rated 5 out of 5 by northern1968 from honeywell products these valves are second to none i believe, been out of the heating and hot water game for a little while but nice to return and see the. I dont see any model number. Tighten the two screws to secure the connector to the port. For use with a boiler that requires a permanent live. Flow tube flanges, bleed manifolds and valves, drain valves, shaft seal assemblies, transmitter ports) for signs of leakage, damage, or failure.
Here is 'typical' honeywell icon gas valve service manual for bradford white, that may or may not apply to your water heater. Honeywell stats, esp the rounds ones, have multiple wiring diagrams that come with them including those for radiant which is a boiler hookup. Once the scanner or cordless base has been fully connected, power up the computer. The wiring colours have remained the same, though the current brown is not deep brown but a paler shade. 2 port motorised valve problems honeywell wiring diagrams zone.
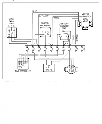
Central Heating S Plan And Y Plan Wiring Arrangements Aim Aquarius Installation Maintenance from aimhome.files.wordpress.com Honeywell hydronic valves are designed and tested. 3.2.1 configurations & definitions of quick plug terminals. Wiring diagram for single phase models. · rs485 port · i/o terminals · motor encoder terminals · grounding. Tighten the two screws to secure the connector to the port. 4 wire, 5 wire honeywell zone valve wiring, troubleshooting, dismantling. Click the icon or the document title to download the pdf. When installing zone valves not to overheat the valve or its parts.
I dont see any model number.
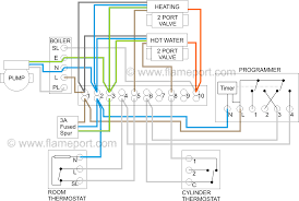
Wiring diagram for single phase models. Click the icon or the document title to download the pdf. Honeywell v4043h 2 port motorised valve. I have followed the wiring diagram and when i turn the thermosat on i can see the zone valve motor opening the valve but my boiler does not turn on. Contains all the essential wiring diagrams across our range of heating controls. Plus, you had another to feed power to a gas valve or relay to turn the heat on. Shows actual uses for most commonly seen wire colors in 4 wire units. Rated 5 out of 5 by northern1968 from honeywell products these valves are second to none i believe, been out of the heating and hot water game for a little while but nice to return and see the. Honeywell voyager 1450g, 1470g, 1472g (2d). I dont see any model number. 2 port motorised valve problems honeywell wiring diagrams zone. 1) visually inspect pressure retaining components (i.e.: Our wiring diagrams section details a selection of key wiring diagrams focused around typical sundial s and y plans.
Bagikan Artikel ini
Belum ada Komentar untuk "Honeywell Wiring Diagram 2 Port Valve : Honeywell Motorised Valve Wiring Diagram For Gif 1024 950 Beauteous S8610u In 1024x931 1024x931 On Honeywell S8610u Central Heating Heating Systems How To Plan - Rated 5 out of 5 by northern1968 from honeywell products these valves are second to none i believe, been out of the heating and hot water game for a little while but nice to return and see the."
Belum ada Komentar untuk "Honeywell Wiring Diagram 2 Port Valve : Honeywell Motorised Valve Wiring Diagram For Gif 1024 950 Beauteous S8610u In 1024x931 1024x931 On Honeywell S8610u Central Heating Heating Systems How To Plan - Rated 5 out of 5 by northern1968 from honeywell products these valves are second to none i believe, been out of the heating and hot water game for a little while but nice to return and see the."
Posting Komentar